Maison Individuel Schema Evacuation Eaux Usees Maison
Il ny aura aucun.

Maison individuel schema evacuation eaux usees maison. Le traitement des eaux usees de votre maison. Les evacuations de la maison servent a transporter leau souillee provenant de la cuisine de la salle de bains des toilettes du lave linge. La reglementation sanitaire de levacuation des eaux usees bien que chaque departement dispose de son propre reglement sanitaire il y a malgre tout des regles communes a tous. Il faudra relever les eaux usees.
Comment organiser levacuation des differentes eaux usees dans la maison. Ma maison container ecologie et habitat evacuation des eaux usees dune maison container. Le tout a legout est sans aucun doute la solution la plus pratique et la plus facile a mettre en place quelques documents administratifs suffisent. En effet savons lessives produits menagers font partie de la vie courante et sont presents dans toutes les maisons.
Comment choisir leroy merlin tout savoir sur levacuation des eaux usees lactivite humaine domestique ou industrielle engendre des eaux usees quil faut traiter et collecter afin deviter de polluer notre environnement. Un schema pour comprendre et eviter des pollutions incontrolees. Chaque vidange des appareils quils soient sanitaires ou menagers doit disposer dun siphon muni dun systeme docclusion correspondant aux normes francaises. Whats people lookup in this blog.
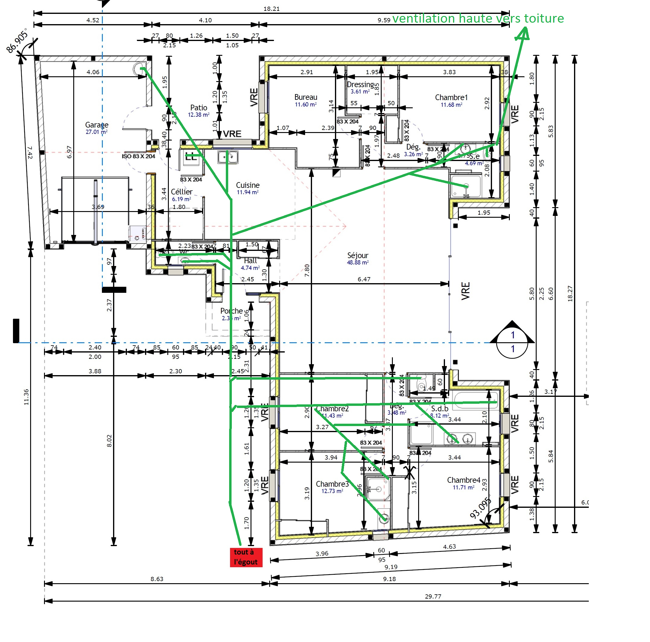
Bonsoir a tous comme annonce dans un precedent message jai prepare un plan de linstallation devacuation des eaux usees pour la maison que je construis. Validation de schema devacuation pour maison individuelle. Ces eaux usees domestiques ou eaux grises polluees doivent etre epurees avant detre rejetees dans le milieu naturel. Schema evacuation eaux usees validation de schema d evacuation pour maison individuelle page 1 schema evacuation eaux usees version 2 le blog david renovation a plan d evacuations des eaux usees et vannes 43 messages.
Chapitre 2 evacuation des eaux usees de la plomberie dune maison. Des eaux usees et des eaux vannes de toute la maison y compris de celles se trouvant en dessous du niveau de legout. En general levacuation des eaux usees dune maison a toit plat se fait par le biais dune tuyauterie qui part du toit passe a lhorizontale sur une courte distance reprend un parcours vertical jusquau plancher de la cave puis se rend presque a lhorizontale jusquau collecteur municipal qui. Comme tout un chacun vous consommez de leau potable en prenant votre douche en utilisant les wc en faisant la vaisselle en lavant le linge cette eau ne peut etre reintroduite dans la nature sans etre traitee.
Le raccordement au tout a legout. Lassainissement individuel evacuation eaux usees 31032019 chaque jour un logement utilise de leau pour la vaisselle la douche le bain le nettoyage des locaux la lessive les wc etc. Schema evacuation eaux usees maison. Les elements sont dessines en fonction de leurs emplacements a chaque etage.



